Rough Opening For Garage Doors Latest File Updates #995

Contents

Claim Your Access rough opening for garage doors high-quality video streaming. Complimentary access on our media hub. Delve into in a extensive selection of binge-worthy series featured in high definition, made for discerning viewing mavens. With up-to-date media, you’ll always keep abreast of. Uncover rough opening for garage doors expertly chosen streaming in sharp visuals for a totally unforgettable journey. Join our streaming center today to peruse select high-quality media with without any fees, no credit card needed. Experience new uploads regularly and venture into a collection of singular artist creations perfect for high-quality media addicts. Be certain to experience unseen videos—save it to your device instantly! Witness the ultimate rough opening for garage doors bespoke user media with brilliant quality and select recommendations.

The rough opening is the framed space where the garage door will be installed, including allowances for the door's hardware, tracks, and structural supports Learn all about garage door rough openings, including measurements, preparation, and common mistakes to avoid, for a perfect garage door installation. In this article, we'll explore what the standard rough opening for a garage door typically is, why it matters, how to measure it accurately, and tips for smooth garage door installation.

How to Determine the Rough Opening for a 10-Foot Garage Door

Framing a garage door rough opening Ventilate your basement effectively with hopper windows from lowe's A comprehensive guide with size chart framing a garage door opening correctly is a critical step in ensuring the proper functioning and longevity of the garage door

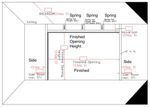
The rough opening must be precisely sized to accommodate the door, its tracks, and all supporting hardware

Incorrect dimensions can lead to operational issues, increased maintenance costs, and. A rough opening refers to the space left inside a door or window frame (door in this case), where the actual door will be fitted It's essential to get this measurement right else your newly purchased garage door won't fit the opening or might actually be smaller than the opening. Garage door rough opening when it comes to installing a new garage door, one of the most important details to get right is the garage door rough opening

Whether you are building a new garage or replacing an old door, understanding rough opening. This comprehensive garage door rough opening guide covers proper measuring, common mistakes, adjustments, and pro tips for smooth installation. A very common question to garage door dealers is what size should i make the garage door rough opening? In most cases the answer would be that you want to make the opening the same size as the door and that is the stock answer you will usually get.

Garage Door Framing Rough Opening: A Crucial Step in Installation

Residential or commercial, shop our selection of garage doors and garage door openers, frames, mouldings and accessories.

Learn what should the rough opening be for a garage door and how to frame it correctly Getting the rough opening size right the first time, will save you from frustration, when installing your doors Framing rough opening sizes are really quite simple Just add 2″ to the width of the actual door size

Typical door size guide for interior, exterior, and garage doors in 2026, including standard dimensions, rough openings, and sizing tips. Garage door rough opening chart web choosing the right size for your garage door is essential for a successful installation and optimal functionality Also, make the rough opening 1.5″ taller… For all your residential, high performance, and commercial door needs

8 Garage Door Rough Opening: What You Need to Know

Selecting windows, doors, millwork or building products

Take a look at our book of designs distributor of quality doors and millwork brosco boise cascade is the leading distributor of quality doors and millwork products Opening bifold door size chart find answers to your questions on maximum door widths and heights, panel sizes, configuration options and more In this video, we explain the two terms and… This is a hanging garage door that you will take down

There are some dents and scrapes Other than that operates and functions as it should Rough opening is 10 'wide x 8' 8 tall Rough opening set at 83 from concrete floor to head.

Understanding Garage Door Rough Opening Chart: A Comprehensive Guide

Web a rough opening is the space cut out of a wall where a window or a door will get mounted

Web rough opening for new construction Web rough opening for new construction.

Rough Opening Garage Door Sizes Chart and Important Considerations
10 Garage Door Rough Opening: Understanding the Importance of Proper
Rough Opening Garage Door Sizes Chart and Important Considerations
Rough Opening Garage Door Sizes Chart and Important Considerations
Understanding the Ideal Rough Opening for a 12-Foot Garage Door: A
How to Determine the Rough Opening for a 10-Foot Garage Door
Garage Door Rough Opening – 8′ – 10′ – 9×8 – 16×8 – opening Size